Haware Meadows – Neral – 1 bhk – Type 1
Haware Group Presents Haware Meadows roject. It is Located in…
Flats - ₹1900000 Onwards
For Sale
Flats - ₹23600000 Onwards




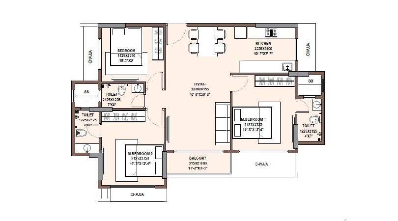
Velcon Pride, with a legacy of luxury and timely home making, coming to Road No 4 Pestom Sagar, Chembur West
Maha RERA NO. PR1180002501712
The Details and Figures Mentioned below are Approximate and are as received from builder and are Subject to changes from time,
Haware Group Presents Haware Meadows roject. It is Located in…
Flats - ₹1900000 Onwards
Audumber Group Presents Flower Valley Project. It is Located in…
Flats - ₹1957000 Onwards
Sugee Vayu – Mulund West – 3 bhk – Type 1
CONTACT US